Bilocale in vendita

Ferrara, Via del Bastianino
€ 99.000
2 locali 2 locali
70 Mq 70 Mq
1 bagno 1 bagno

Bilocale in vendita

Ferrara, Via del Bastianino

Descrizione annuncio

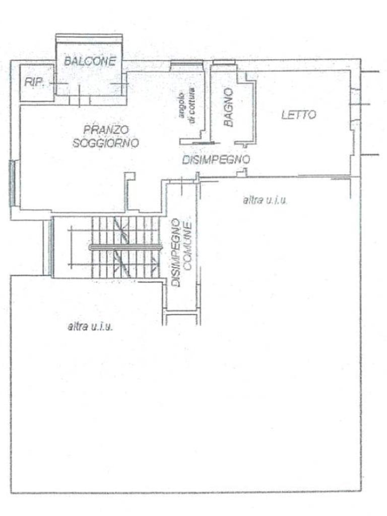
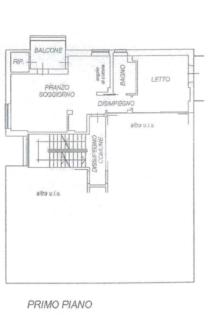
In zona Barco, in Via del Bastianino, comoda per raggiungere la stazione e il centro città, appartamento al primo piano completamente ristrutturato nel 2021, situato in un contesto residenziale e servito da tutte le principali comodità.

L’ingresso si apre su un luminoso soggiorno con angolo cottura, dove è presente una comoda nicchia attrezzata come spazio per riporre scarpe e cappotti, completa di seduta. Dal soggiorno si accede al balcone verandato con ripostiglio. Un disimpegno collega la zona giorno al bagno finestrato con doccia e alla camera da letto matrimoniale, che dispone di terrazzo condominiale ad uso esclusivo.

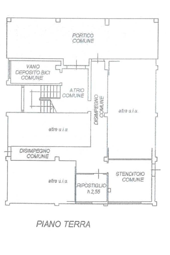
Al piano terra completano la proprietà una cantina e un garage.
L’appartamento è dotato di aria condizionata, infissi in PVC e tapparelle.

Mostra tutto

Nelle vicinanze

Trasporto pubblico Trasporto pubblico
Ferrara
Ferrara
1,7 Km
stazione di Pontelagoscuro
stazione di Pontelagoscuro
1,8 Km
Bentivoglio - Guercino
Bentivoglio - Guercino
60 m
Bentivoglio - Scarsellino
Bentivoglio - Scarsellino
90 m
Ricariche auto elettriche Ricariche auto elettriche
EnelX EVA+ ACI Ferrara
1,2 Km
LIDL Ferrara Po
1,4 Km
Eneldrive Poste
1,6 Km
Lidl Ferrara Eridano
1,7 Km
Eneldrive Parcheggio Via del Lavoro
1,7 Km
Scuole Scuole
Facoltà di Giurisprudenza
1,8 Km
Scuola elementare Matteo Maria Boiardo
1,9 Km
Facoltà di Scienze Matematiche, Fisiche e Naturali
2,0 Km
Dipartimento di Fisica e Scienze della Terra
2,1 Km
Centro studi biomedici applicati allo sport
2,1 Km
Farmacia Farmacia
Barco
140 m
Salute
630 m
La Porta degli Angeli
1,3 Km
Forlani
1,4 Km
Arianuova
1,4 Km
Ospedali Ospedali
Centro di Medicina dello Sport
920 m
Casa di cura "Salus"
1,6 Km
Azienda USL di Ferrara
1,9 Km
Supermercati Supermercati
Eurospar
800 m
EuroSpin
1,2 Km
In's Mercato
1,4 Km
Lidl
1,4 Km
Punto Simply
1,5 Km
Negozi Negozi
Slam Jam Outlet
1,3 Km
Pasticceria Ferrara
1,5 Km
Panificio Dellepiane
1,7 Km
MOTOLAND
1,9 Km
Il salotto del pane
2,2 Km
Bar Bar
Bar Il covo
660 m
Chiosco Bar
790 m
Discoteca Soul Kitchen
1,2 Km
Bar "Al Doro"
1,2 Km
Enoteca Bar "L'Acino"
1,3 Km
Ristoranti Ristoranti
Pizzeria Hurly Burly
490 m
Trattoria "Il Sigillo"
900 m
Trattoria Pizzeria "Don Abbondio"
910 m
Ristorante "Moon"
1,2 Km
Hong Ye
1,3 Km
Mostra tutto

Caratteristiche

Rif.:
61139119
Piano:
1 di 4 (Piano basso)
Box:
1
Balconi:
1
Camere da letto:
1
Arredamento:
Assente
Mostra tutto
Prezzo Prezzo
€ 99.000
Rata mutuo Rata mutuo
€ 466 / mese
Spese annue Spese annue
€ 500
Proponi il tuo prezzoProponi il tuo prezzo
Immobile valutato con T·Valuta

Classe Energetica

G
G
G
G
G
G
G
G
G
EP globale non rinnovabile:
410.67 kW h/m² anno
EP globale rinnovabile:
2.34 kW h/m² anno
EP invernale del fabbricato:
EP estiva del fabbricato:
Anno di costruzione:
1960
Riscaldamento:
Autonomo
Tipo impianto:
A radiatori
Tipo alimentazione:
Metano

Ti interessa visionare l'immobile?

Fissa un appuntamento  Fissa un appuntamento

Richiedi informazioni

Clicca su Leggi per aprire l'informativa
* Questi campi sono obbligatori

Calcola il tuo mutuo

Semplice e senza impegno
Anticipo

( % )
Mutuo

( % )

pochi semplici passi

inserisci i tuoi dati
Questionario completato
Grazie per aver richiesto un appuntamento senza impegno con un nostro Consulente del Credito e Assicurativo.

Hai inserito correttamente tutti i dati necessari e a breve riceverai una e-mail con un link da convalidare per inviare i tuoi dati.
Affiliato
Azeta.net Srl
Corso Porta Mare, 66A/68 44100 Ferrara (FE)

Il nostro staff


  • Alessandro Zanardi
    Affiliato

  • Nicol Bassi
    Coordinatrice

  • Matteo Seravalli
    Responsabile
Corso Porta Mare, 66A/68 44100 Ferrara (FE)
Zona: Corso Porta Mare-Palestro-Corso Giovecca-C. Mayr-XX Settembre-Baluardi
Mostra su mappa
Orari: Lunedi - Venerdi 9.00-13.00 / 15.00-20.00 Sabato 9.00-14.00
Affiliato
Azeta.net Srl
Corso Porta Mare, 66A/68 44100 Ferrara (FE)

2026 Tecnocasa Franchising S.p.A. - P. IVA 08365160152 - Via Monte Bianco 60/A 20089 Rozzano (MI). Ogni agenzia ha un proprio titolare ed è autonoma. Privacy policy | Policy utilizzo | Cookie policy