Quadrilocale in vendita

Ferrara, Via della Paglia
€ 240.000
Prezzo aggiornato
4 locali 4 locali
146 Mq 146 Mq
2 bagni 2 bagni

Quadrilocale in vendita

Ferrara, Via della Paglia

Descrizione annuncio

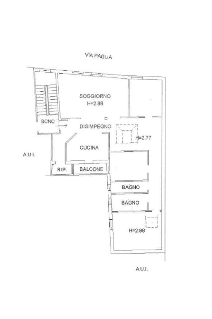
Nel cuore del centro storico di Ferrara, in Via della Paglia 20, appartamento quadrilocale di ampia metratura, situato al terzo ed ultimo piano di una palazzina composta da sole otto unità abitative. L’immobile è stato oggetto di una ristrutturazione interna nel 2016 e di un intervento di riqualificazione esterna nel 2021. Le utenze sono completamente autonome.

L’ingresso arredabile conduce a una funzionale zona lavanderia e introduce a un soggiorno ampio e luminoso, dotato di una stufa a pellet. La cucina abitabile, dispone di un pratico accesso diretto al balcone verandato.

Un disimpegno ben organizzato e luminoso collega la zona giorno alla zona notte, composta da tre camere da letto di buone dimensioni, e da due bagni finestrati. Dal disimpegno si accede, mediante scala retrattile, a un ampio sottotetto che offre uno spazio accessorio ideale per essere destinato a ripostiglio.

La proprietà si completa con un posto bici dedicato e con una cantina situata in Via delle Vecchie.

La soluzione si presta anche come investimento, viste le ampie dimensioni e la possibilità di ricavare ulteriori camere da letto.

Mostra tutto

Nelle vicinanze

Trasporto pubblico Trasporto pubblico
Ferrara
Ferrara
2,0 Km
Carlo Mayr - Gioco del Pallone
Carlo Mayr - Gioco del Pallone
300 m
Giovecca - Parco Pareschi
Giovecca - Parco Pareschi
320 m
Ferrara Via Boschetto
Ferrara Via Boschetto
1,7 Km
Ferrara Aleotti
Ferrara Aleotti
2,0 Km
Ricariche auto elettriche Ricariche auto elettriche
Eneldrive JFK
700 m
Eneldrive Castello Estense
760 m
Eneldrive Casa del Bambino
1,3 Km
Eneldrive Poste
2,0 Km
LIDL Ferrara Po
2,0 Km
Scuole Scuole
Istituto Professionale di Stato per i Servizi Commerciali Turistici Sociale Pubblicità "Luigi Einaudi"
170 m
Università degli Studi di Ferrara
170 m
Facoltà di Lettere e Filosofia
250 m
Dipartimento di Studi umanistici
260 m
Istituto d'Arte "Dosso Dossi"
320 m
Farmacia Farmacia
Tomaini
50 m
Farmacia Amato
240 m
Farmacia "Fides"
360 m
Farmacia Sempreviva
380 m
Unicorno
390 m
Ospedali Ospedali
Città della Salute "Cittadella San Rocco"
550 m
Casa di cura "Salus"
1,5 Km
Azienda USL di Ferrara
1,5 Km
Centro di Medicina dello Sport
2,2 Km
Guardia Medica - Servizi socio sanitari
2,5 Km
Supermercati Supermercati
Metà Supermercati
210 m
Coop
300 m
PamLocal
400 m
Conad City
440 m
Despar
580 m
Negozi Negozi
Scout
180 m
La bottega del pane
190 m
Zara
260 m
Minimarket Timo
300 m
Intimissimi
370 m
Bar Bar
Bar Enoteca "Enotria"
80 m
Tsunami Lounge Cafè
180 m
Bar "Mazzini"
200 m
Bar "Red Oxa"
230 m
"Il barettino"
260 m
Ristoranti Ristoranti
Bar Pizzeria "Da Pippo"
30 m
Fuocolento
50 m
Ristorante Pizzeria "Il Ciclone"
110 m
Pizzeria "Orsucci da Armando"
110 m
Trattoria "Il sorpasso"
140 m
Mostra tutto

Caratteristiche

Rif.:
61148794
Piano:
3 di 3 (Piano alto)
Balconi:
1
Camere da letto:
3
Arredamento:
Parziale
Condizionamento:
Autonomo
Mostra tutto
Prezzo Prezzo
€ 240.000
Rata mutuo Rata mutuo
€ 1.145 / mese
Spese annue Spese annue
€ 1.200
Proponi il tuo prezzoProponi il tuo prezzo

Classe Energetica

E
E
E
E
E
E
E
E
E
EP globale non rinnovabile:
195.41 kW h/m² anno
EP globale rinnovabile:
2.19 kW h/m² anno
EP invernale del fabbricato:
EP estiva del fabbricato:
Anno di costruzione:
1967
Riscaldamento:
Autonomo
Tipo impianto:
A radiatori
Tipo alimentazione:
Metano

Prezzo ridotto di €1 (13%%)

Ti interessa visionare l'immobile?

Fissa un appuntamento  Fissa un appuntamento

Richiedi informazioni

Clicca su Leggi per aprire l'informativa
* Questi campi sono obbligatori

Calcola il tuo mutuo

Semplice e senza impegno
Anticipo

( % )
Mutuo

( % )

pochi semplici passi

inserisci i tuoi dati
Questionario completato
Grazie per aver richiesto un appuntamento senza impegno con un nostro Consulente del Credito e Assicurativo.

Hai inserito correttamente tutti i dati necessari e a breve riceverai una e-mail con un link da convalidare per inviare i tuoi dati.
Affiliato
Azeta.net Srl
Corso Porta Mare, 66A/68 44100 Ferrara (FE)

Il nostro staff


  • Alessandro Zanardi
    Affiliato

  • Matteo Seravalli
    Responsabile
Corso Porta Mare, 66A/68 44100 Ferrara (FE)
Zona: Corso Porta Mare-Palestro-Corso Giovecca-C. Mayr-XX Settembre-Baluardi
Mostra su mappa
Orari: Lunedi - Venerdi 9.00-13.00 / 15.00-20.00 Sabato 9.00-14.00
Affiliato
Azeta.net Srl
Corso Porta Mare, 66A/68 44100 Ferrara (FE)

2026 Tecnocasa Franchising S.p.A. - P. IVA 08365160152 - Via Monte Bianco 60/A 20089 Rozzano (MI). Ogni agenzia ha un proprio titolare ed è autonoma. Privacy policy | Policy utilizzo | Cookie policy