Quadrilocale in vendita

Ferrara, Via Girolamo da Carpi - Centro Mura Est
€ 320.000
Prezzo aggiornato
4 locali 4 locali
126 Mq 126 Mq
2 bagni 2 bagni

Quadrilocale in vendita

Ferrara, Via Girolamo da Carpi - Centro Mura Est

Descrizione annuncio

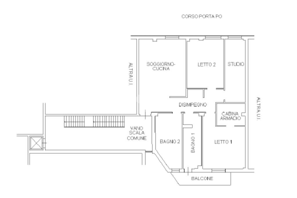
In via Girolamo da Carpi, in un contesto residenziale e riservato di Ferrara, a pochi passi da Piazza Ariostea, appartamento al primo piano servito da ascensore, attualmente in fase di ristrutturazione e progettato per offrire comfort contemporaneo ed elevata efficienza energetica.

L’ingresso si apre sulla zona giorno, uno spazio luminoso con angolo cottura ad induzione, soluzione moderna pensata per eliminare l’utilizzo del gas e favorire uno stile abitativo più sostenibile. Un corridoio ben distribuito conduce alla zona servizi, composta da due bagni entrambi finestrati, uno con doccia e predisposizione per la vasca, il secondo, con doccia e accesso diretto al balcone. Il disimpegno è stato concepito per ospitare un’ampia armadiatura a muro, ideale per garantire ordine e funzionalità. La zona notte comprende due camere matrimoniali, una impreziosita da cabina armadio, oltre a una stanza jolly versatile, perfetta come studio, camera singola o stanza per gli ospiti.

Completa la proprietà una cantina.

In via Girolamo da Carpi, è presente, ad un prezzo aggiuntivo, di 38.000 euro, un garage al piano terra con accesso carrabile.

L’appartamento sarà completamente climatizzato, dotato di nuovi infissi in PVC, con tapparelle elettriche, verrà completato di tutte le rifiniture prima della consegna, sanitari, climatizzatori, porte interne. Verrà sostituita la porta d’ingresso con una nuova porta blindata.

Il palazzo è stato recentemente valorizzato con il rifacimento del tetto nel 2025 e la tinteggiatura di tutte le parti comuni. Il riscaldamento centralizzato con impianto geotermico assicura elevati standard di comfort ed efficienza, con spese condominiali pari a circa 2.400 euro annui, comprensive di riscaldamento e consumo dell’acqua.

Mostra tutto

Nelle vicinanze

Trasporto pubblico Trasporto pubblico
Ferrara
Ferrara
2,2 Km
Mortara - Porta Mare
Mortara - Porta Mare
90 m
Porta Mare - Mortara
Porta Mare - Mortara
140 m
Ferrara Via Boschetto
Ferrara Via Boschetto
2,4 Km
Ferrara Aleotti
Ferrara Aleotti
2,9 Km
Ricariche auto elettriche Ricariche auto elettriche
Eneldrive Castello Estense
1,0 Km
Eneldrive Casa del Bambino
1,1 Km
Eneldrive JFK
1,6 Km
LIDL Ferrara Po
2,0 Km
Eneldrive Poste
2,1 Km
Scuole Scuole
Dipartimento di Matematica
270 m
Dipartimento di Scienze chimiche e Farmaceutiche
320 m
Dipartimento di Morfologia, Chirurgia, Medicina sperimentale, Scienze della vita e biotecnologie
330 m
Facoltà di Medicina
350 m
Facoltà di Farmacia
380 m
Farmacia Farmacia
Parafarmacia Porta Mare Servizi
160 m
Farmacia Comunale "Porta Mare"
220 m
Farmacia Ariostea
530 m
Farmacia
560 m
Farmacia "Fides"
750 m
Ospedali Ospedali
Città della Salute "Cittadella San Rocco"
890 m
Casa di cura "Salus"
1,1 Km
Azienda USL di Ferrara
1,8 Km
Centro di Medicina dello Sport
1,9 Km
Supermercati Supermercati
Despar
70 m
PamLocal
970 m
Coop
1,1 Km
Metà Supermercati
1,1 Km
Conad City
1,1 Km
Negozi Negozi
La Bottega del Pane
870 m
La bottega del pane
870 m
Lella B
920 m
Sisley
930 m
Cervi
960 m
Bar Bar
Bar "Stella"
60 m
Snac Bar "Crocedelizia"
100 m
"Ludovico Wine Bar"
530 m
Bar Pasticceria "Ariosto"
530 m
Wine Bar "La Punta"
620 m
Ristoranti Ristoranti
Ristorante "Ariosteria"
540 m
Pizzeria "Da Alice"
550 m
Ristorante "Makorè"
780 m
Ristorante Ca' d'Frara
860 m
Ristorante "Raccano"
860 m
Mostra tutto

Caratteristiche

Rif.:
61163847
Piano:
1 di 4 con ascensore (Piano basso)
Box:
1
Balconi:
1
Camere da letto:
3
Arredamento:
Assente
Mostra tutto
Prezzo Prezzo
€ 320.000
Prezzo box Prezzo box
€ 38.000
Rata mutuo Rata mutuo
€ 1.513 / mese
Spese annue Spese annue
€ 2.400
Proponi il tuo prezzoProponi il tuo prezzo

Classe Energetica

C
C
C
C
C
C
C
C
C
EP globale non rinnovabile:
93.68 kW h/m² anno
Anno di costruzione:
1967
Riscaldamento:
Centralizzato
Tipo impianto:
A radiatori
Tipo alimentazione:
Metano

Prezzo ridotto di €1 (11%%)

Ti interessa visionare l'immobile?

Fissa un appuntamento  Fissa un appuntamento

Richiedi informazioni

Clicca su Leggi per aprire l'informativa
* Questi campi sono obbligatori

Calcola il tuo mutuo

Semplice e senza impegno
Anticipo

( % )
Mutuo

( % )

pochi semplici passi

inserisci i tuoi dati
Questionario completato
Grazie per aver richiesto un appuntamento senza impegno con un nostro Consulente del Credito e Assicurativo.

Hai inserito correttamente tutti i dati necessari e a breve riceverai una e-mail con un link da convalidare per inviare i tuoi dati.
Affiliato
Azeta.net Srl
Corso Porta Mare, 66A/68 44100 Ferrara (FE)

Il nostro staff


  • Alessandro Zanardi
    Affiliato

  • Matteo Seravalli
    Responsabile
Corso Porta Mare, 66A/68 44100 Ferrara (FE)
Zona: Corso Porta Mare-Palestro-Corso Giovecca-C. Mayr-XX Settembre-Baluardi
Mostra su mappa
Orari: Lunedi - Venerdi 9.00-13.00 / 15.00-20.00 Sabato 9.00-14.00
Affiliato
Azeta.net Srl
Corso Porta Mare, 66A/68 44100 Ferrara (FE)

2026 Tecnocasa Franchising S.p.A. - P. IVA 08365160152 - Via Monte Bianco 60/A 20089 Rozzano (MI). Ogni agenzia ha un proprio titolare ed è autonoma. Privacy policy | Policy utilizzo | Cookie policy